来自于微信--Rhino画剖面的各种姿势
这样的一张图很能反映设计思路和设计细节,想要绘制这样一张图的话大前提肯定是有足够的设计深度,以及完善的设计模型。经过之前我们的努力,已经得到了尽量细致的模型了,接下来就是如何出图以及美化了。


差不多是酱紫,注意,不断有截面线,还有剖面线,还封了面,并且这些面的材质都继承了剖切物体的材质哦!仔细观察你会发现多了几个图层,分别存储剖切的线和面和剖切线,并且图层是锁定的,意思是不到最后你不要去动它,因为当你修改剖切位置或者模型之后,这个剖切面是可以自动更新的!然而问题是没有看线啊,光有这个有球用?那让我们继续。
点击view(Clip,View,Cplane),你就可以看到剖视图的预览

但是现在仍然只是显示模式的预览,仍然不是矢量图,也不是平面图,这时sectiontool厉害的地方来了,点击对剖视图进行make2d,这里的选项设置和rhino本身是一致的,根据需要去调整选项就行了。

那么你将得到下图这样的线稿,感觉离我们的目标进了一步了,那让我们开始吧。

然后切换成投影模式并缩放视图至所选物体,就可以得到正对着模型的视图了。

赶紧右键存一下视图,防止下一次要调用,类似于su的场景。

那么我们现在可以点击section tool的make2d of clippde view命令了,然后你讲得到如下的一张图,细节不错,但是还是有很多问题。

第二是尺寸,make2d得到的线稿并不是实际尺寸而是视图的相对尺寸,所以我们要对其进行缩放,比如我知道我的底板是250mm厚度,我就依次对全部线稿进行缩放就哦了。

其余部分自然也就对了

尺寸标注的话大多数和cad是一致的,比较需要注意的是空间缩放比,其他的各位用了这么久的cad看着设置就行了,我们采用和原图的圆点形式的标注。

但是三维的怎么办?酱紫的?

没什么办法,三维画,然后make2d呗,但是有一些是需要注意的。首先rhino自己的填充图案很少,只有几种,好在我们是可以直接从cad的图案里倒入的,cad有多少我们就有多少~!进剖面线倒入,然而这个方式有点问题,那就是每次只能倒入一个······这不坑爹么···难道我们真要一个一个的导入么?当然不是!

导入rhino当中,所有的填充图案就都有了,这些记得单独存个图层不要删,因为rhino的图案在关闭rhino之后就会清空,下次用还得重新导入,除非你rhino当中有对应的图案实例存在,所以存着表删~~~接下来就可以开始了。

借助gh的Human插件我们只要有平面轮廓线直接获得所有的填充~!

缩放后我们就得到了正确的三维剖面显示以及人的轮廓,看这三维的hatch多标志~

好,缩放之后就可以开始标注了,wait!突然发现rhino没有天正的多点标注啊,怎么办,一个个标注然后移动对齐么?怎么能这么低效!不符合我们rhino的大方针!怎么办?我们有GH啊!只要把关键点对齐y轴之后输入给gh自动对齐标注就哦了,bake出来的标注就是当前标注样式~~

就酱紫,经过一番努力我们得到了基础的图,不着急,还有很长的路要走。

首先,剖面截面线怎么办,make2d并没有帮我们把截面处的填充做出来,难道要我们一个个来画么,wait!sectiontool创建剖面的时候不是有几个锁定的图层么,只有截面线的那几个!组织召唤他们的时候到了!解锁!拖过来!!

就是他了,我们已经缩放完毕,所以肯定是可以对上的~小技巧,把截面部分上移100就好,遮挡住地下的线,可以看到,完美的得到了剖切的部分,甚至还有材质哦~~
后来发现视角有点小所以又进行了调整,当然这因人而异,最终的图差不多是酱紫
最后,当图面差不多之后,就是去ai或者ps进行加工了,调调线型,多点对比,加加花花草草~~比如我们可以直接选中线稿导出成ai,是的rhino可以直接导出ai,然后调整线宽,设置线型,获得想要的样子。

然后进ps,往上堆各种我们手绘处理的素材·······是的,我ps比较渣···直接找美图秀秀

当然你也可以选择打印显示模式叠在下面增加一些细节,结果孰优孰劣全看各位看官喜好~~~
什么?你要渲染剖透视不要线稿?线稿太麻烦了?好吧,至少vray不支持剖面的直接渲染,如果你非要用vray做的话,那就不得不得将模型进行修剪了。比如下图就是我曾经干过的······rhino的修剪也并不是很复杂,至少不会像su的交错那样让人提心吊胆~

什么,还是太麻烦?还要单独建个模型不开心?好吧是你逼我的~同学你听过maxwell么?没听过的就赶紧去找听闻去学吧
那么进入正题,本期主题是Section,准确的说是Perspective Section。
作为最能表达内部空间的图示形式,剖透视受到众多设计师的青睐。
这种Section Diagram,在正确表达结构(或者更加复杂的构造)的基础上,加入人物、物品、景观,将事件和场所注入图形之中,使空间流动。表达功能的同时,描述空间和设计者的意图。
这里,我们以上一期美食之家的模型为例,与大家聊聊Rhino结合模型制作剖透视的技巧。
-----------------------------
对于rhino的话,不论是要绘制剖面还是剖透视,我们都有无数种方法,其中有着很多小技巧,就以我们之前刚做的美食之家的图作为案例给大家一一道来吧,那么下图就是我们成图的目标了~~~~
下图是我们最终的成果图~~~好吧植物们吃了不好意思·······还有不要问地下室去哪了,实际建筑就没地下室,只有概念图有·······
下图是我们最终的成果图~~~好吧植物们吃了不好意思·······还有不要问地下室去哪了,实际建筑就没地下室,只有概念图有·······
我们都知道rhino当中有一个自带的剖面工具,大概是酱紫的
就视觉效果的话还是可以的,如果被剖切的物体是封闭实体的话剖切面还会给你封上,如果这样的效果就可以满足你的要求了,那我们直接点击print打印图像。而打印出的图像效果如何直接取决你的显示模式调整。
就视觉效果的话还是可以的,如果被剖切的物体是封闭实体的话剖切面还会给你封上,如果这样的效果就可以满足你的要求了,那我们直接点击print打印图像。而打印出的图像效果如何直接取决你的显示模式调整。
但是这样的方式缺点自然也很明显,比如本身是位图,导出之后不大好加工,剖切面还得自己一个一个的填色,也没办法去添加构造级别的线稿,有的剖切线竟然还打印不出来,实在是太低效了,可加工程度也低,不符合我们学rhino的宗旨,不过如果你仅仅是想叠线稿的话,这到不失为一个好的方法。
然而我们的要求肯定不会这么低,那么我们要怎么做呢?首先,rhino自身的剖切面是不能被make2D的,这就意味着我们没办法得到剖切面的线稿再进行深加工。那怎么办咧?如果我们想要之前那张吊炸天的图怎么办呢?这就要隆重介绍我们rhino的一个剖切插件了~~sectiontool!
这是一个简单好用却很强大的rhino插件,下载后直接双击安装就可以了,我们来简单看看使用方法,毕竟这个插件本身就没几个命令,首先第一步,菜单栏点击create然后全选所有想要加入剖切的物体来创建剖切位置。
然而我们的要求肯定不会这么低,那么我们要怎么做呢?首先,rhino自身的剖切面是不能被make2D的,这就意味着我们没办法得到剖切面的线稿再进行深加工。那怎么办咧?如果我们想要之前那张吊炸天的图怎么办呢?这就要隆重介绍我们rhino的一个剖切插件了~~sectiontool!
这是一个简单好用却很强大的rhino插件,下载后直接双击安装就可以了,我们来简单看看使用方法,毕竟这个插件本身就没几个命令,首先第一步,菜单栏点击create然后全选所有想要加入剖切的物体来创建剖切位置。
记得进行选项设置,设置剖切轴向dir是x还是y还是自己pick;设置SolidMode为both,同时又surface和hatch,后面的各种选项都是用来设置填充显示的。
然后点击2D Layout它就开始给你出剖截面了。
差不多是酱紫,注意,不断有截面线,还有剖面线,还封了面,并且这些面的材质都继承了剖切物体的材质哦!仔细观察你会发现多了几个图层,分别存储剖切的线和面和剖切线,并且图层是锁定的,意思是不到最后你不要去动它,因为当你修改剖切位置或者模型之后,这个剖切面是可以自动更新的!然而问题是没有看线啊,光有这个有球用?那让我们继续。
点击view(Clip,View,Cplane),你就可以看到剖视图的预览
但是现在仍然只是显示模式的预览,仍然不是矢量图,也不是平面图,这时sectiontool厉害的地方来了,点击对剖视图进行make2d,这里的选项设置和rhino本身是一致的,根据需要去调整选项就行了。
那么你将得到下图这样的线稿,感觉离我们的目标进了一步了,那让我们开始吧。
首先我们要把视角调对了,比较便捷的方式是,先将试图调到对应的平行视图
然后切换成投影模式并缩放视图至所选物体,就可以得到正对着模型的视图了。
赶紧右键存一下视图,防止下一次要调用,类似于su的场景。
那么我们现在可以点击section tool的make2d of clippde view命令了,然后你讲得到如下的一张图,细节不错,但是还是有很多问题。
首先是有曲面的部分不能make2d,所以我们需要对有曲面的部分提取边缘或者添加结构线等,添加可以make2d的东西。
这样就对了。
第二是尺寸,make2d得到的线稿并不是实际尺寸而是视图的相对尺寸,所以我们要对其进行缩放,比如我知道我的底板是250mm厚度,我就依次对全部线稿进行缩放就哦了。
其余部分自然也就对了
尺寸标注的话大多数和cad是一致的,比较需要注意的是空间缩放比,其他的各位用了这么久的cad看着设置就行了,我们采用和原图的圆点形式的标注。
等等,好像少了什么?对!剖面线~!截面位置的剖面线我们是可以自己绘制的,像酱紫,用剖面线命令,该怎么花就怎么画,和cad差不多
但是三维的怎么办?酱紫的?
没什么办法,三维画,然后make2d呗,但是有一些是需要注意的。首先rhino自己的填充图案很少,只有几种,好在我们是可以直接从cad的图案里倒入的,cad有多少我们就有多少~!进剖面线倒入,然而这个方式有点问题,那就是每次只能倒入一个······这不坑爹么···难道我们真要一个一个的导入么?当然不是!
首先,在cad当中把你想要的或者可能用到的填充图案都画出来,如下。
导入rhino当中,所有的填充图案就都有了,这些记得单独存个图层不要删,因为rhino的图案在关闭rhino之后就会清空,下次用还得重新导入,除非你rhino当中有对应的图案实例存在,所以存着表删~~~接下来就可以开始了。
借助gh的Human插件我们只要有平面轮廓线直接获得所有的填充~!
通过这样的方法,我们经过了一番努力我么把需要的部分加上了填充,那么重新开始make2d of clippde view命令,需要注意的是,剖面线一定要炸开才能make2d!一定要炸开!并且顺便加上点人以及家具来营造气氛~~~
缩放后我们就得到了正确的三维剖面显示以及人的轮廓,看这三维的hatch多标志~
好,缩放之后就可以开始标注了,wait!突然发现rhino没有天正的多点标注啊,怎么办,一个个标注然后移动对齐么?怎么能这么低效!不符合我们rhino的大方针!怎么办?我们有GH啊!只要把关键点对齐y轴之后输入给gh自动对齐标注就哦了,bake出来的标注就是当前标注样式~~
就酱紫,经过一番努力我们得到了基础的图,不着急,还有很长的路要走。
首先,剖面截面线怎么办,make2d并没有帮我们把截面处的填充做出来,难道要我们一个个来画么,wait!sectiontool创建剖面的时候不是有几个锁定的图层么,只有截面线的那几个!组织召唤他们的时候到了!解锁!拖过来!!
就是他了,我们已经缩放完毕,所以肯定是可以对上的~小技巧,把截面部分上移100就好,遮挡住地下的线,可以看到,完美的得到了剖切的部分,甚至还有材质哦~~
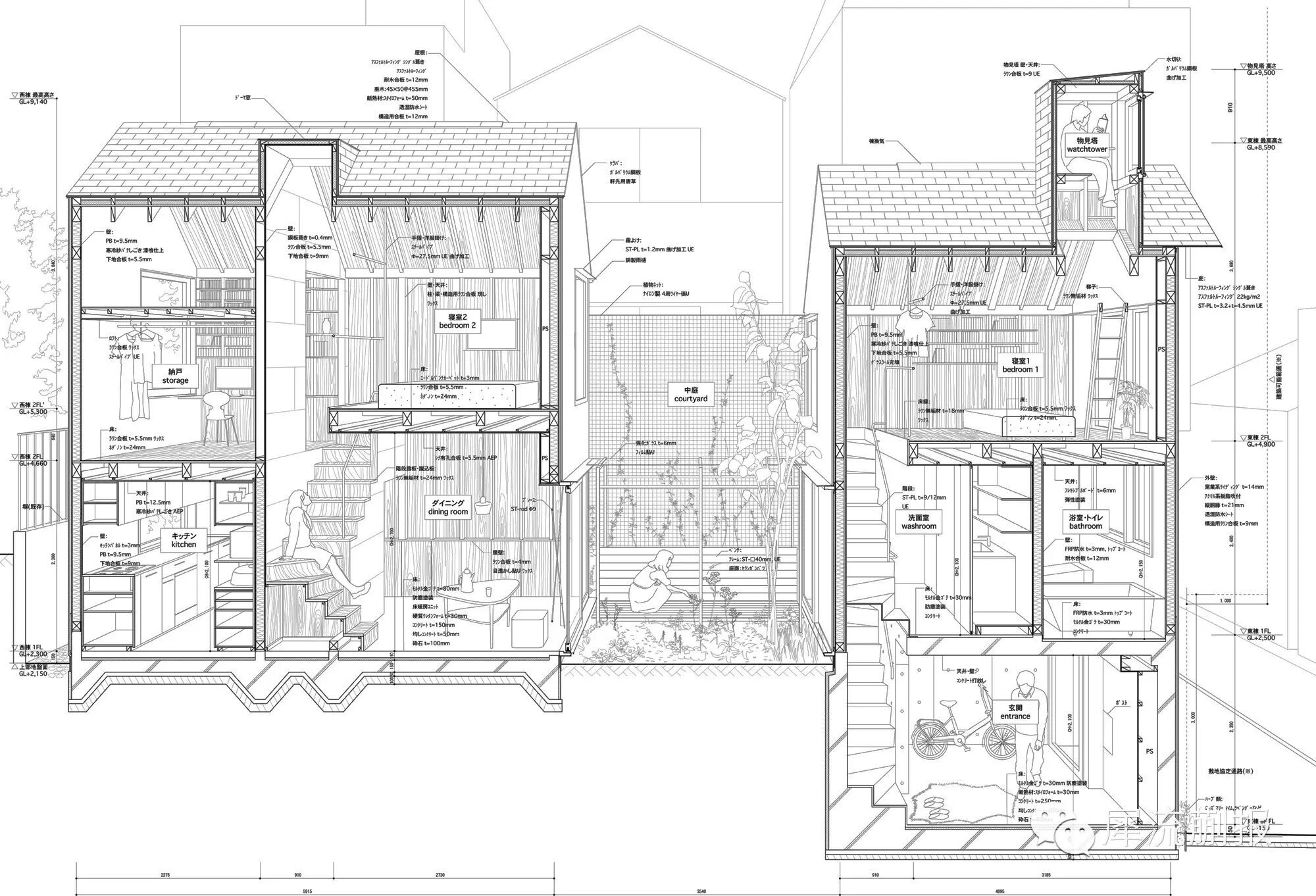
在此基础上深化构造这个就得有工程经验了,我表示这里我只能瞎画了·····
最后,当图面差不多之后,就是去ai或者ps进行加工了,调调线型,多点对比,加加花花草草~~比如我们可以直接选中线稿导出成ai,是的rhino可以直接导出ai,然后调整线宽,设置线型,获得想要的样子。
然后进ps,往上堆各种我们手绘处理的素材·······是的,我ps比较渣···直接找美图秀秀
差不多酱紫
当然你也可以选择打印显示模式叠在下面增加一些细节,结果孰优孰劣全看各位看官喜好~~~
什么,还是太麻烦?还要单独建个模型不开心?好吧是你逼我的~同学你听过maxwell么?没听过的就赶紧去找听闻去学吧
那么2015年最后一篇的内容就到这里结束了~~希望各位看官喜欢,给各位先拜个早年了~~